zum Inhaltsverzeichnis

Der Schwarzwaldhof in der Freiburger Vorbergzone
von
Franz Meckes


1 DER FUSSENHOF IN KIRCHZARTEN-GEROLDSTAL wurde am 28. 3. 1754 vom Zimmermeister Hans Janz aufgerichtet.
Die Firstsäulenkonstruktion, die Walmausbildung und der Wandaufbau sind noch unverändert erhalten geblieben.
Fussehof1.jpg


Der Eindachhof des Schwarzwaldes ist eine der charakteristisehsten Gebäudeforrnen Mitteleuropas. Die aus topographischen und klimatischen Gründen sinnvolle Zusammenfassung von drei Grundfunktionen, Wohnhaus, Viehstall und Bergeraum‚ hat sich über Jahrhunderte als zweckentsprechend bewährt. Dabei wurde die Grundgestalt des Hauses immer wieder nach unterschiedlichen Zwecken variiert und nach sich wandelnden Bedürfnissen modifiziert.

Veränderte Lebensgewohnheiten und veränderte Bedingungen für die Höhenlandwirtschaft. besonders die Nebenerwerbslandwirtschaft, machen heute wiederum eine Anpassung des Schwarzwaldhauses an diese neuen Gegebenheiten in vielen Fällen notwendig. Neben dem Problem, wie ein neuer, moderner landwirtschaftlicher Betrieb sinnvoll in einem Gebäude untergebracht werden kann, das der charakteristischen Bauweise des Schwarzwaldes wenigstens in der Großform entspricht, besteht das Problem der Denkmalpflege darin, auf welche Weise ein historischer Schwarzwaldhof, der ein Kulturdenkmal darstellt, saniert und modernisiert werden kann, ohne daß die Eingriffe in den historischen Bestand ein vertretbares Maß überschreiten.

In einem Forschungsauftrag der Forschungsgemeinschaft Bauen und Wohnen beschäftigt sich Prof. Dr. Schnitzer, Karlsruhe, mit dieser Frage. Zu ihrer Lösung kann die
Kenntnis der Variationsbreite in der Grundrißdisposition des historischen Schwarzwaldhauses und der Wandlungen, die Grundriß und Aufriß der einzelnen Hoftypen im Laufe der Geschichte erlebten, einen Beitrag leisten.

Das charakteristische quergeteilte Einhaus der Freiburger Vorbergzone, das den Wohn- und Wirtschaftsteil unter einem mächtigen Dach vereinigt, ist in allen Einzelheiten
das Ergebnis einer kontinuierlichen Entwicklung, die wir bis zum Anfang des 16. Jahrhunderts zurückverfolgen können. Auch wenn im gesamten Einzugsbereich des Dreisamtales die Bausubstanz in den Wirren des 16. und 17. Jahrhunderts durch zerstörungswütige Landsknechte und durch weitere Katastrophen erheblich reduziert wurde, so lassen sich dennoch anhand der wenigen frühen Beispiele im Zusammenhang mit den Höfen im Hochschwarzwald verschiedene Entwicklungsperioden bis hin zur gemeinsamen Wurzel aufzeigen.

Die Urform dieser Höfe ist das sogenannte Heidenhaus, das in seiner älteren Form senkrecht zum Hang steht. Der Wohnteil schmiegt sich an den im Sommer kühlen und im Winter wärrnehaltenden Berg an und wird vor kalten Herbststürrnen durch den zur Talseite hin vorgelagerten Stall geschützt. Im Gegensatz zu den zeitgleichen Höfen des Kinzigtales tritt in der Regel die talseitige Stirnwand des „Heidenhauses“ kaum in Erscheinung. Das mächtige Manteldach mit den tiefheruntergezogenen Dachflächen überdeckt das zweigeschossige Gebäude, das sich trotz der großen Grundfläche und der stattlichen Firsthöhe von 12-14 m durch die beiden vollabgewalmten Giebelseiten harmonisch in das Landschaftsbild einfügt und in keiner Weise gestelzt wirkt.

Das Haus besteht im Längsschnitt aus 5-7 hintereinander gestellten Säulen, die im Abstand von 2,5-3 m angeordnet sind. Im Querschnitt wird das Hausgerüst aus 3 Hochsäulen und 2 zusätzlichen Wandsäulen gebildet, die durch Quer- und Spannriegel miteinander verbunden sind. Die Mittelsäule trägt die Firstpfette und zeigt, daß Haus- und Dachgerüst in der mittelalterlichen Bauweise konzipiert wurden.

Die einzelnen Binderebenen bedingen die Querteilung des Hauses und nehmen entsprechend den Funktionen in unterschiedlichen Abständen die gefachtrennenden Wände auf. Die Lage der Innenwände, durch zusätzliche Wandsäulen festgelegt, kann ebenso wie die unterschiedlichen Nutzungen innerhalb der einzelnen Gefache an den Öffnungen der Außenwände abgelesen werden.


heidenhaus
2 EIN CHARAKTERISTISCHES „HEIDENHAUS“ der älteren Form milden weit heruntergezogenen Dachflächen, die Schutz
vor Wind‚ Schnee und Regen bieten.


 
Der Grundriß läßt deutlich die Trennung zwischen Wohn- und Ökonomieteil erkennen. Dieser ist in der Regel in vier Querstreifen aufgeteilt und enthält den zweireihigen Stall, den Futtergang und die Tenne. Dabei zeigt sich der Nachteildes quergeteilten Hauses, das durch die festgelegte Haustiefe auch die Anzahl der Tiere begrenzt und eine spätere betriebliche Erweiterung in der Querrichtung ausschließt. Die Tenne liegt wie beim alten oberschwäbischen Haus und dem Firstsäulenhaus des schweizerischen Mittellandes ebenerdig und reicht über zwei Geschosse. Aber die vielfältigen Tennenfunktionen des oberschwäbischen Dreigefachhauses - Verkehrsfläche, Treppenhaus, Futtergang, Abstell- und Druschplatz - werden beim „Heidenhaus“ nur auf die wichtigste Nutzung als Druschtenne reduziert.

Das Wohnhaus betritt man von der Traufseite und gelangt in den Hausgang, der quer zum First von einer Außenwand zur anderen reicht und den Wirtschaftsteil vom Wohnbereich trennt. Bei den ältesten Häusern finden wir noch den zweiraumbreiten Wohnteil, der jedoch noch im 16. Jahrhundert durch veränderte Wohnbedingungen, durch nachträgliche Einbauten unterteilt und bei Neubauten zugunsten eines dreiraumbreiten Grundrisses aufgegeben wurde.

Wie die Tenne so ist auch die Küche beim „Heidenhaus“ zweigeschossig; denn neben dem Rauchfang mußte für die Rauchkammer noch ausreichend Platz geschaffen werden.

Die Stube, die auf der Sonnenseite des Hofes liegt, enthält in der Regel eine separate Treppe, die zur Schlafkammer des Bauern führt. Das Gesinde schläft in drei Kammern über dem Stall, die über die Treppe im Hausflur und einen der Hauswand vorgelagerten Gang erschlossen werden.

Der gewaltige Dachraum kann über eine kurze Erdrampe am bergseitigen Walm befahren werden. Die Stellung der Firstsäulen verlangt jedoch eine von der Mitte abgerückte Einfahrt, die in die große Walmfläche eingeschnitten ist. Der Dachraum enthält auf der Einfahrtsebene zwei Funktionsbereiche. Über dem Wohnteil liegt ein größerer freier Raum, der im Winter die Aufgabe des Wirtschaftshofes übernimmt. Von dort führt eine Brücke in den Heubergeraum bis zum talseitigen Walm. Ohne größeren Arbeitsaufwand wird der Heuwagen in die 2 m tiefer liegende Heubühne entladen.

Dieser nur in großen und vereinfachten Zügen aufgezeichnete Haustyp erhält im zweiten Drittel des 16. Jahrhunderts zwei Varianten, so daß von nun an im Verbreitungsgebiet des „Heidenhauses“ gleichzeitig drei nur geringfügig voneinander abweichende Gebäudeformen erstellt werden.

Eine minimale, aber für den Wohnwert entscheidende Veränderung erfährt die eine Hausvariante durch den Austausch von Wirtschaftsteil und Wohnbereich unter Beibehaltung der Gebäudestellung senkrecht zum Hang. Es scheint, daß die schützende Funktion am Berg zugunsten einer besseren Besonnung des Wohnteils und einer größeren Aussicht auf Straße und Tal aufgegeben wurde. Haus- und Dachgerüst sind unverändert erhalten geblieben.

Bei der zweiten Variante verändert sich das Erscheinungsbild des Hofes in der Landschaft durch die Drehung des Hauskörpers um 90°, so daß die Firstlinie parallel zu den
Höhenlinien des Hanges verläuft.

Der dreiraumtiefe Wohngrundriß enthält an der Talseite die große Wohnstube, die zweigeschossige Küche und eine daran angrenzende Leibgedingkammer. Für Leibgeding und Küche erweist sich die geänderte Gebäudestellung als vorteilhaft, da beide Räume nunmehr von der Walmseite aus erschlossen werden können, Hausgang, Tenne und der zweireihige Stall mit Futtergang sind in der Grundrißordnung unverändert. Den genannten Funktionsbereichen vorgelagert ist eine Holzbrücke, auf der das Milchhäusle und der Brunnen mit dem Tränketrog stehen. Diese Brücke hat
eine Doppelfunktion: sie dient als Erschließungsgang für Mensch und Tier und läßt die Jauche darunter in den hausnahen Wiesen versickern, so daß wie beim „Heidenhaus“ der älteren Form kein Abwasser in den Wohnteil eindringen kann.

rothansenhof grundriss
rückansicht
hauptansicht
3 ROTHANSENHOF
in Furtwangen-Mäderstal. Grundriß.
4 RUCKANSICHT
5 HAUPTANSICHT


Mit der Drehung des Hauses muß zwangsläufig auch die Einfahrt in den Dachraum von der Walmseite zur Traufseite am Berg wandern. Die traufseitige Erschließung erfordert jedoch bei voller Ausnutzung der Grundfläche und der geringeren Dachneigung der Längsseite einen Gebäudeanbau in Form einer Wiederkehr. In der Regel liegt die Einfahrt direkt über der Tenne und damit fast mittig im Hausgrundriß, so daß auf die frühere Erschließungsbrücke über der Heubühne verzichtet wird. Der über dem Wohnteil liegende Wirtschafts- und Abstellbereich wäre bei dieser Erschließung unter Beibehaltung der Firstsäule mit den beiden Hochsäulen kaum zu nutzen gewesen. Aus diesem Grunde war der Einbau der etwas komplizierter liegenden Binder,
die im oberen Teil noch den Rest einer Firstsäule enthalten, unumgänglich. Der weit heruntergezogene Walm am Stallende und der traufbündige Vollwalm über dem Wohnteil sind auch bei dieser Hausvariante erhalten geblieben.

In der Mitte des 17. Jahrhunderts führen andere Lebensgewohnheiten zu einer Erweiterung der Wohnflächen. Der Leibgedingteil wird aus dem bestehenden Wohngrundriß in einen Anbau ausgelagert. Dieser Anbau steht immer im Anschluß an das alte Wohngefach an der Walmseite des Hauses. Beim Rothansenhof (1582?) in Furtwangen-Mäderstal wird der zweigeschossige Anbau in Form einer Wiederkehr im Bereich der Stube angefügt. Beim Gemeindehof (1593) in Schönwald hat man First und Traufe über den fast die gesamte Frontlänge einnehmenden Erweiterungsbau verlängert, dabei gleichzeitig die Dacheinfahrt aus der Mitte zur Außenseite verlegt und damit die alte, sicherlich bequemere Längsersehließung des Dachraumes wiederhergestellt. Statisch äußerst problematisch war die Erweiterung des Oberen Geschwendhofes (1613) in Gütenbach, wo unter Beibehaltung des Firstendes und der Traufhöhe der Neigungswinkel der Walmseite erheblich reduziert wurde, so daß das gesamte Baugefüge durch erhöhte Wind- und Schneelast bei geringfügiger Längsaussteifung ganz beachtlich aus dem Lot kam. Diese Beispiele verdeutlichen die Erweiterungsmöglichkeiten unter Wahrung des charakteristischen Erscheinungsbildes dieser Höfe.

Der Pfendlerhofin Zarten, das älteste, 1610 datierte „Heidenhaus“ im Dreisamtal, entspricht in der Grundrißanordnung und im Aufbau des Haus- und Dachgerüstes im wesentlichen der bereits beschriebenen zweiten Hausvariante.

Dem dreiraumtiefen Wohngrundriß - Stube, Küche und Leibgeding - folgen Flur, Tenne und der doppelreihige Stall mit Futtergang. Die Außenwände von Stube, Küche und Leibgeding lagen ursprünglich in einer Flucht. Auch der von außen erschlossene Keller unter dem Stüble folgt noch der alten Hausflucht. Erst bei einer späteren Umbauphase wird der Grundriß um einen Meter vergrößert und die Außenwand bis zur Küchenmitte massiv erstellt. Bemerkenswert ist auch der schmale, aber tiefe Lcibgedingbereich, der in den Hausgang vorspringt. Unter Beibehaltung der Durchgangsfunktion wird die Einschnürung im Hausgang für die Weiterentwicklung des Wohngrundrisses entscheidend sein.

Die Stube, die keine separate Treppe zur Schlafkammer des Bauern mehr enthält, ist zur Straße nach Nordosten orientiert. An der Westseite über dem Stall bietet der weit heruntergezogene Vollwalm Schutz vor Wind und Wetter. Auf der gegenüberliegenden Seite zeigt dagegen die kühne Walmauskragung, daß die Grenzen der statischen Möglichkeiten bereits überschritten sind. Nur durch eine nachträgliche Unterstützung konnte der Dreiviertelwalm ohne wesentliche bauliche Veränderung erhalten bleiben.

Aus der Lage des Hofes in der Ebene läßt sich die breite, befahrbare Tenne erklären. Aber auch der Futtergang ist breiter befahrbar und reicht wie Tenne und Küche über zwei Geschosse. Diese nach heutigen betriebswirtschaftlichen Gesichtspunkten optimale Lösung hat man aber bei einem weiteren Umbau wieder aufgegeben. Im Obergeschoß führt der äußere Umgang an der Hauptseite des Hofes erstmals bis zur Ecksäule der Stube. Die beiden Einfahrten zur Tenne und zum Futtergang verlangten aber eine Unterbrechung des Umgangs, so daß die beiden von außen erschlossenen Knechtskammern nur durch eine Leiter zu erreichen waren. Vom oberen Hausgang an der Rückseite des Hofes gelangt man über eine zweite Außengalerie am
Leibgedingteil vorbei bis zur Außentür der Rauchkammer.

Das Hausgerüst mit den stehenden Bindern über dem Stall und den liegenden Bindern über dem Wohnteil bringt im konstruktiven Aufbau keine nennenswerten Veränderungen. Auch Arnold Tschira, Karlsruhe, der erstmals 1932 auf diesen Hof in Zarten aufmerksam machte, weist ausdrücklich in seiner Untersuchung darauf hin, daß einige Unterschiede in der Erschließung gegenüber der bisher besprochenen Hausform „nur durch die Gegebenheiten des Bauplatzes bedingt sind“. Somit zählt dieser Hof mit dem dreiraumtiefen Wohngrundriß trotz aller unbestrittenen Detailunterschiede immer noch zu der zweiten Hausvariante des „Heidenhauses“.

1616 entsteht im Zastler, unweit von Oberried, der Glaserhansenhof. Interessante Veränderungen im Wohngrundriß kündigen bei diesem Hof die dritte Variante des „Heidenhauses“ an. Die Küche, die bisher immer an der Walmseite lag, wandert zur Traufseite und ist stirnseitig vom Hausgang erschlossen. Der Hausgang bleibt wie beim Pfendlerhof in Zarten trotz Einschnürung als Verbindungselement über die gesamte Gebäudetiefe erhalten. Außerdem springt das Leibgeding erstmals um 2 m über die Gebäudeflucht vor und zeigt im Wandaufbau und in den Holzverbindungen eine einheitliche Planungsidee und keinen nachträglichen Anbau. Dennoch wirkt der zweigeschossige vorspringende Gebäudeteil anbauartig, da der obere Abschluß unter dem Vollwalm wie eine gestelzte Kiste vor die eigentliche Hausflucht springt und noch nicht in den Gesamtbaukörper integriert ist.

Waren schon viele der alten „Heidenhäuser“ im großen Bauernkrieg des Jahres 1525 durch eine Freiburger Exekutionsmannschaft vernichtet, so wird in den Wirren des 30-jährigen Krieges ab 1631 das Freiburger Hinterland im Wechsel von schwedischen, kaiserlichen und seit 1637 von französischen Truppen heimgesucht und in „Gottes erbärmlichen Übelstand“ zurückgelassen. Die noch erhalten gebliebenen Höfe standen oft wochenlang leer, da die Bevölkerung aus Furcht vor Requisitionsritten und Razzien in die abgelegenen Wälder flüchtete. Nach einem Bericht von 1632 „hat der Hof den Verlust aller Mobilien, sonderlich auch der Fenster, Öfen, Türen, Läden und Wägen usw.. zu beklagen“. Dies verdeutlicht recht anschaulich den Zustand der Hofruinen.

6 PFENDLERHOF IN ZARTEN. Der Grundriß enthält bereits die minimale Erweiterung im Leibgedingbereich. 1 = Stube, 2 = Küche, 3 = Leibgeding,
4 = Hausflur, 5 = Tenne,  6 = Stall, 7 = Futtergang, 8 = Schmutzgang.
pfändlerhof grundriss
7 IN DER STRASSENANSICHT ist bereits das große Tor zum Futtergang durch eine Bohlenkonstruktion ersetzt. Pfändlerhof Strassenansicht
8 GLASERHANSENHOF IM ZASTLER. Er wurde 16/6 erbaut. glserhansenhof
9 DER FUSSENHOF mit dem ursprünglichen Kellerabgang und dem früheren kleinschuppigen Holzschindeldach. fussenhof mit kellerabgang

Nach den Leidensjahren des 30jährigen Krieges verbleibt nur wenig Zeit zur Instandsetzung und zum Wiederaufbau der abgebrannten Höfe. Bereits am 9. November 1677 wird die Stadt Freiburg von französischen Truppen erneut eingenommen. Einquartierung, Plünderung und Einäscherung der Höfe stehen wieder auf der Tagesordnung. Zusätzliche Schanzarbeiten, Vorspann- und Fuhrdienste brachten der Bauernschaft eine schwere Belastung, so daß nur wenig Zeit für dringende Arbeiten am eigenen Hof übrig blieb. Mit dem Abzug der französischen Truppen aus Freiburg 1697 sind die Schreckensjahre noch nicht zu Ende. 1704 ziehen die Truppen des Marschalls Tallard beim Umgehungsmarsch um die Stadt Freiburg von Merzhausen über Günterstal nach Kappel und brennen dort alle Höfe nieder.

Damit sind im Dreisamtal die baugeschichtlichen Quellen und Informationen über Grundrißgestaltung und Konstruktionsaufbau des Wand- und Dachgefüges bis auf ein Minimum reduziert (Wagensteig, Hausmeierhof 1630, Buchenbach, Schupphof 1651, Ibental, Gallihof 1692, Buchenbach, Jockeleshof 1693 und Zastler, Stephanshäusle 1696).

Nach den erheblichen Substanzverlusten setzt zu Beginn des 18. Jahrhunderts wieder eine große Neubauphase ein. Die Stellung der zum Teil wesentlich größeren Eindachhäuser im Gelände ist völlig unterschiedlich. Neben den Höfen auf ebenem Baugrund finden wir im gleichen Verhältnis sowohl die zum Hang parallele als auch die senkrechte Stellung zu den Höhenlinien. Der Stall an der Wetterseite mit dem heruntergezogenen Vollwalm und die Lage der Stube zum Haupterschließungsweg waren wichtige Gesichtspunkte, die es beim Neubau dieser Höfe zu berücksichtigen galt. Unter den gegebenen Prämissen konnte eine optimale Besonnung des Wohnbereichs nur noch in Ausnahmefällen ermöglicht werden.

Da die Höfe auf fast ebenem Baugelände errichtet wurden, war nur ein geringer Unterbau nötig. Er umschließt unter dem Wohnteil einen Keller. Das sichtbare Mauerwerk des Unterbaues trägt auf dem Putz eine helle Kalkschlemme und an der Ecke eine rote Quaderimitation. Dieser reizvolle Kontrast zwischen hellem Sockelgeschoß und den rotbraun bis schwarz von Wetter und Rauch gefärbten Bohlen und Säulen und dem silbergrauen Stroh- oder Schindeldach ist weithin sichtbar.

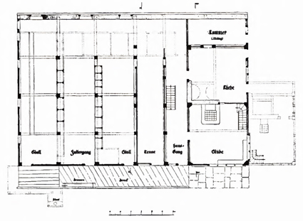
10 CHARAKTERISTISCHER GRUNDRISS eines Dreisamtalhofes.
grundriss
11 ALTE KAMINLOSE KÜCHE mit Rauchfang.
kaminlos


Durch die zweiflügelige Haustür gelangt man in den Flur und von da in den seitlich angrenzenden, dreiraumtiefen Wohnteil. Geht man aber durch den Flur weiter, so stößt man auf die Küche, die nunmehr wie beim Glaserhansenhof immer in der Mitte des Wohnhauses und nicht mehr an der Walmseite liegt. Zwischen Küche und der Stall- oder Tennenraum trennenden Wand zieht sich ein schmaler Gang durch das Gebäude bis zur anderen Längsseite des Hofes. Von außen zeigt sich bei diesen Höfen in der Vielzahl der Türen die Durchlässigkeit in der Querrichtung.

Die rauchgeschwärzte, kaum belichtete Küche hat große Ähnlichkeit mit einer Schmiede. Beißender Rauch steigt von den beiden Herdstellen auf, kühlt am Rauchfang ab und strebt an den aufgehängten Speckseiten und Würsten, die von der offenen Rauchkammer herunterhängen, vorbei durch ein offenes Rauchgelaß ins Freie. Die Rauchöffnungen an Decke und Außenwand bewirken eine zugige Küche, die im Winter trotz Feuerstellen ungemütlich kalt ist. Die Trennwand zur Leibgedingstube, zur Kammer und zur Wohnstube war die einzige massive Wand im Hof, an die sich der Hauptherd der Küche und der Leibgedingherd anlehnen. Vom Hauptherd kann durch gesonderte Züge, die in der Rückwand eingelassen sind, die Kachelwand der Kammer erwähnt werden. Leibgeding und Wohnstube besitzen eigene Kachelöfen. die wiederum nur von der

12 AUFNAHME UM 1900. Sie belegt noch die mit Butzenscheiben gefüllten Fenster und den späteren Ersatz. buntzen
walmdach
13 DIE NACHTRÄGLICHE ZURÜCKNAHME DES VOLLWALMS erfolgte bei (liesem Hof zugunsten einer besseren Belichtung der Schlafräume und zur Verbesserung der statischen Probleme im Auskragungsbereiclt des Walms‘. Dabei veränderten sich die Proportionen an der Schattseite zum Tal ganz erheblich. Bemerkenswert und in der Zeichnung noch ablesbar sind die Konslruktionshölzer für die Schiebeläden an der Trattfseite der Stube.

Küche aus beheizbar sind. Der große Kachelofen in der Wohnstube ragt als mächtiger Vorbau in den fast quadratischen Raum und gibt am Abend über einen Schieber in der Decke die Wärme in die Schlafstube des Bauern ab. Die Stube wird durch zwei unterschiedlich breite Fensterbänder mit aneinandergekoppelten Fenstern erhellt. Die Einzelfenster weisen fast überall ein Normmaß von 72x92 cm auf und waren ursprünglich mit Butzenscheiben, mit kleinen Rechteckscheiben mit Bleisprossen oder mit kleinen, unverkittet in den Holzsprossen sitzenden Scheiben gefüllt. Allen Fenstern gemeinsam ist der Schieber, der, im unteren Drittel angebracht, dem Fenstererker eine zusätzliche, neben der vertikalen eine horizontale Gliederung verleiht. Diese reizvolle malerische Gliederung finden wir auch an der zum Walm hin orientierten Leibgedingstube. Vielleicht hatte auch noch die dazwischengeschaltete Kammer solche Fenster. In den Schlafkammern des Obergeschosses einschließlich der Knechtskammern über dem Stall fanden wir bei Freilegungs- und Restaurierungsmaßnahmen keine Originalfenster. Im Gegenteil. die kleinen Öffnungen der Schlafkammern waren nur durch Holzschieber von der Innenseite zu schließen. Die frischluftregulierenden Schieber konnten klein gehalten werden, da die verhältnismäßig undichten, nur mit Moos ausgestopften Holzfugen ohnehin wind- und wärrnedurchlässig waren. Um die Fensteröffnungen an Stube und Leibgeding zusätzlich vor kalten Winden und Schneetreiben schützen zu können, hat man Außenläden angebracht. Im Dreisamtal fand der Zugladen weite Verbreitung (am Kybadhof in Kappel und am Burkartshof im Zastler waren Zugläden noch nach dem Zweiten Weltkrieg in Betrieb). An einem Strick wird der Laden von unten nach oben gezogen. Ein vorgeklappter Riegel oder eine Holzfeder halten den Laden im aufgezogenen Zustand. Von außen sind die Zugläden am Ladengestell zu erkennen. Sehr häufig umrahmen an der Seite omamentierte Bretter das Ladengestell, das nach oben hin durch ein weiteres ornamentiertes Sturzholz abgeschlossen wird.

Die Plastizität der Außenwand entsteht durch den konstruktiven Wandaufbau. In die Eck- und Wandsäulen sind Büge mit reichkonturierten Blattenden eingelassen, die zur Aussteifung des Gebäudes beitragen. Um die Stärke der Büge springt die Bohlenwand um 6 bis 8 cm hinter die Flucht der Säulen. Gesims- und Sturzbalken stehen dagegen 8 cm vor der Säulenflucht, so daß die aneinandergekuppelten Fenster, die in die Nuten der beiden Balken eingeschoben wurden, erkerartig vor die Hausflucht treten und so eine schon von weitem sichtbare Differenzierung in Stube und Kammerbereich ermöglichen. Über dem Gesimsbalken verlaufen die eingeschobenen Bohlen nicht mehr waagerecht, sondern senkrecht, was zu einer zusätzlichen Geschoßgliederung führt.

Ein weiteres plastisches Gebäudeelement finden wir in der Galerie, die durch Büge von unten gestützt und durch verlängene Galeriepfosten an den Bund- und Deckenbalken aufgehängt ist. Im Gegensatz zu früheren Beispielen führt bei der dritten Variante des „Heidenhauses“ der Umgang von der hintersten Knechtskammer an der Schlafstube des Bauern vorbei, knickt an der vorderen Gebäudeecke im rechten Winkel ab und stößt dann auf die Tür der Fruchtkammer des walmseitigen Vorbaus. Dieser wichtige Erschließungsgang im Obergeschoß integriert gleichzeitig den Vorbau in den Gesamtbaukörper.

Der Vor- und Rücksprung von der vorderen Walmseite. die verklammernde Funktion der umlaufenden Galerie und das unterschiedliche Schattenspiel auf den einzelnen Bauelementen prägen ganz entscheidend diese Hofvariante des „Heidenhauses“ im Dreisamtal und lassen sie anhand der genannten Merkmale von anderen leicht unterscheiden.

Seit dem Ende des 17. Jahrhunderts findet man in der Regel über dem Türsturz am Hofeingang Hausinschriften, die neben dem Hausspruch auch Auskunft geben über Bauherrschaft, Baudatum, Zimmer- und Spannmeister.

Interessant ist die Tatsache, daß auch jene Zimmerleute, die außerhalb des Dreisamtales ansässig waren, gleichfalls die charakteristische Hausform dieses Tales übernahmen und
damit zu einer einheitlichen Baulandschaft beitrugen (z. B. Josef Egger, Egher oder Ekher aus Breitnau baut 1705 in Zarten den Färberhof, 1723 in Wagensteig den Rombachhof und 1728 in Wagensteig den Altenvogthof).

In der Vorbergzone nördlich von Freiburg wird dann die dritte Variante des „Heidenhauses“ von den gleichen Zimmerleuten auch über das eigentliche Entstehungsgebiet (z. B. Glottertal, Flammenhof 1713) hinaus verbreitet.

Aufbau
14 DER KONSTRUKTIVE AUFBAU DES HOFES ist im Längsschnitt ablesbar. Im Stallbereich übernehmen drei Firstsäulen die Hauptlast, über dem Wohnteil leiten liegende Binder die Dachlast ab. Der konstruktive Aufbau läßt eine saubere, durchdachte und aus der Erfahrung vieler Jahrhunderte entwickelte Bauart erkennen.


Für einen neuen Hof benötigten die Zimmerleute etwa 1000 Festmeter Rundholz aus kräftigen, langen Fichten und Weißtannen. 1631 mußten die Bauern „für ewige Tage auf den auf ihren altenberechtigten Bauernhäusern ruhenden unentgeltlichen Bezug des halben Bau- und Sägeholzes“ verzichten und nun das gesamte Bauholz im eigenen Wald schlagen oder dazukaufen. Da man bei dem großen Bedarf an Bauholz in der Wiederaufbauphase des 18. JahrhundertsEngpässe befürchtete, erließ man Verordnungen, um die Bauholzreserven für die Zukunft zu erhalten. In der Waldordnung des Prechtales von 1730 heißt es z. B.: „Es darf kein Bau- oder Sägehblz, Dillen oder Bretter aus dem Tal weggeführt oder verkauft werden, damit die Waldungen geschont und nur der Bedarf der Einwohner geschlagen werden, bei Strafe von fünf Kronen.“ Am 10. August 1753 verlangt die Regierung, daß zur „Schonung und Erhaltung der Wälder und zur Abwendung der Feuersgefahr“ wenigstens der untere „Stock“ der neuen Häuser massiv ausgeführt wird. Auch sollen die Zäune durch Hecken ersetzt und die Straßen und Wege dürfen " nicht mehr mit Holz gebrücket und überlegt. sondern mit Steinen ausgeflicket und repariert werden".

Der hohe Materialwert der Höfe führt auch des öfteren zum Ab- und Wiederaufbau der Holzkonstruktionen. So verfügt der Abt von St. Peter, daß die Lehensgüter nur mit seiner Zustimmung verkauft und versetzt werden dürfen. Die Gründe für eine Versetzung waren unterschiedlicher Art. Betriebswirtschaftliche Überlegungen führten 1750 zur Versetzung des Reinerhofes in Furtwangen. In Eschbach wird 1754 der Hugmichelhof von der unruhigen Durchgangsstraße hinauf zum Hochacker verlegt. „Erbaut haben es die Zimmerleute Jansen Anno 1754“, so ist es der Hausinschrift über dem Eingang zu entnehmen. Bei genauer Betrachtung des Hofgrundrisses stellen wir noch das Grundgefüge des alten „Heidenhauses“ aus dem 16. Jahrhundert fest. Aus den Veränderungen im Wohnbereich und an der Außengalerie lassen sich die Details der dritten Hausvariante des „Heidenhauses“ erkennen; d. h. die Zimmerleute haben das Gebäude in seiner Grundsubstanz versetzt und dabei gleichzeitig auch die zeitgemäßen Grundrißveränderungen und individuellen Wünsche des Bauherrn berücksichtigt. Auch im 19. Jahrhundert finden wir noch solche Beispiele. So wurde der Stollenhof in Freiburg-Kuppel 1869 versteigert, 1872 völlig abgebaut
und in Neuhäuser unverändert in Substanz und Grundriß wieder aufgebaut. Waren die Höfe einmal erstellt. so galt die Sorge der Obrigkeit nun ihrer Erhaltung, was sich insbesondere in den Polizei- und Feuerverordnungen des 18. und 19. Jahrhunderts widerspiegelt.

15 NEBEN DER „ING-RUNE“, die auf den Außenbohlen der Schlafkammer aufgemalt ist, finden wir sechsspeicherige Räder oder Sterne und daraus abgeleitet die Variationen, die, mit Kienruß und Ochsenblut gefaßt, als Glücksbringer und dekorative Ornamente der Volkskunst die Höfe zieren. Runen
16 DER ERLENHOF IN HIMMELREICH im verputzten Zustand. Die Zeichnung zeigt auch noch die chrakteristische offene Hocheinfahrt. Erst später verlegte man das Tennentor in die vordere Flucht und schloß die Hocheinfahrt, um sie vor Wind, Regen und Schnee besser zu schützen. ERlenhof

In der Polizeiverordnung vom 14. Januar 1769 wird bei Bauernhäusem im österreichischen Vorlande aus gesundheitlichen und feuerpolizeilichen Gründen der Einbau eines gemauerten Kamins innerhalb eines Jahres gefordert. Auch sollen die Strohdächer von nun an durch Ziegel ersetzt werden. Bei neuen Gebäuden duldet man keine Strohdächer mehr. Aber Wien ist weit weg und so hatte die landesfürstliche Behörde erhebliche Schwierigkeiten bei der Durchsetzung dieser Forderungen. (Noch heute sind einige Rauchküchen in Betrieb.)

In einer Feuerverordnung von Josef II. wird am 17. September 1782 erneut verlangt, daß die Gebäude mit Ziegeln, wenigstens mit Schindeln, niemals aber mit Stroh zu decken sind. Eine harte Auflage, wenn man bedenkt, daß fast alle Höfe des Dreisamtales mit Stroh gedeckt waren.

In den Feuerverordnungen erfahren wir gleichzeitig etwas über Brandgefahren und Brandursachen. In Scheunen und anderen mit feuerfangenden Sachen angefüllten Orten war das „Tobak“-Rauchen verboten. Strohschneiden, Flachsbrechen, Hecheln und Dreschen durften bei der Nachtzeit entweder gar nicht, auf gar keinen Fall aber bei freiem Lichte durchgeführt werden. Untersagt wurde auch der Gebrauch des freien Lichtes in den Stallungen.

Die genannten Ursachen führten zu den katastrophalen Hofbränden. Dabei spielte es letztlich keine Rolle, ob die Dachhaut des Holzhauses mit Stroh, Schindeln oder Ziegel eingedeckt war. Von den stattlichen Eindachhäusern blieb bei einer solchen Katastrophe nichts mehr übrig. Dennoch wurden durch neue Verordnungen die Auflagen immer weiter verschärft.

So verschwanden im 18. und 19. Jahrhundert die Holzhäuser des Dreisamtales hinter einer Putzschicht und büßten damit ihr charakteristisches Erscheinungsbild in Material und Wandausformung ein. Eine innenministerielle Verordnung vom 7. Januar 1831, die ohne Kenntnis der sturrnbedingten Schwierigkeiten praxisfern in Karlsruhe-Durlach entstand, verlangte sogar die Abschaffung des Schindeldaches zugunsten der Ziegeldeckung und erlaubte in Ausnahmefällen wieder das Strohdach. Es kann nicht verwundern, daß diese Verordnung 1855 wieder aufgehoben werden mußte.

Ab 1800 (Ebnet, Lindlehof) entstehen im Dreisamtal in unmittelbarer Nähe der Althöfe zweigeschossige massive Wohnhäuser. Sie entsprechen den Bauordnungen von 1787 und 1808 und überlassen dem Holzhaus nur noch die Stall- und Lagerfunktionen.

Damit endet im Dreisamtal zu Beginn des 19. Jahrhunderts der Bau neuer stattlicher Eindachhöfe in der ursprünglichen Grundfunktion und Weiterentwicklung Wohnhaus, Viehstall und Bergeraum.

Nur noch wenige Ökonomiegebäude werden von reiner Holzkonstruktion in Auftrag gegeben und von den erfahrenen Zimmerleuten ausgeführt. Eine seit Jahrhunderten bewährte Bautradition muß zugunsten einer modisch massiven und technisch meist mangelhaften Bauart aufgegeben werden.

DipL-Ing. Franz Meckes
LDA - Bau- und Kunsrdenkmalpflege
Colombistraße 4, 7800 Freiburg im Breisgau
in: DENKMALPFLEGE IN BADEN-WÜRTTEMBERG
Jg.10, Nr.2, 1981